Acheter un appartement 5 pièces
de 122 m² à Nantes (44000)
1 200 000 € FAI
Réf. EG5417
Découvrez une adresse d'exception, quai de Versailles à Nantes, et installez-vous sur les bords de l'Erdre dans le quartier réputé des Hauts-Pavés / Saint-Félix.
Ce magnifique logement de type 5 profite de larges ouvertures sur l'Erdre, avec vue sur l'île de Versailles.
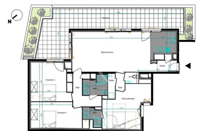
Cet appartement bénéficie d'une belle pièce de vie prolongée d'un d'une terrasse de 46 m², procurant ainsi lumière et espace et de 3 chambres. Il est complété par deux stationnements. Les prestations de qualité, choisies avec soin, vous garantiront un confort de vie optimal.
Cette résidence de 2024, a été pensée pour procurer à ses occupants un écrin de sérénité et d'élégance qui s'inscrit dans un environnement privilégié, au carrefour des animations du centre nantais et du site exceptionnel de l'Ile de Versailles.
Les informations sur les risques auxquels ce bien est exposé sont disponibles sur le site Géorisques : www. georisques. gouv. Fr
L'ADRESSE 4 Immo Nantes - c'est 4 métiers : Gestion locative, Location, Syndic de Copropriété, Vente et 3 agences : Talensac-Calvaire-Schuman.
Retrouvez-nous sur www.4immo.fr et sur www.ladresse-nantes-centre.com
Copropriété de 45 lots - dont 25 lots habitation. (Pas de procédure en cours).
Charges annuelles : 1200 euros.
Gwenn GAUTIER (EI) Agent Commercial - Numéro RSAC : 2024AC00261 - NANTES.
Informations complémentaires
- Type : Appartement T5
- Nombre de chambres : 3
- Étage : 5
- Nombre de pieces : 5
- Année : 2024
- Surface habitable : 122
- Salle(s) de bain : -
- Stationnement : Sous-sol
- Chauffage : Individuel, Gaz
- Référence : EG5417
Surfaces approximatives non vérifiées.
Dépenses énergétiques
